Quand l’architecture (des)sert l’usage
Si face à l’urgence des enjeux environnementaux, la prise de conscience collective semble faire partie intégrante de l’évolution des modes de vie, il n’est parfois pas si évident de se retrouver acteur du changement individuellement, à l’échelle même de son habitat.
Pourtant, donner la possibilité aux usagers de devenir actifs au sein de leurs espaces de vie pourrait permettre d’insuffler de nouvelles manières de penser en les impliquant au travers de dynamiques individuelles et collectives et ainsi tendre vers de nouvelles démarches habitantes, à terme plus durables. Il s’agit finalement de redonner une place centrale à l’habitant au sein de son logement, davantage en lien avec son environnement, en lui donnant la possibilité de fabriquer un climat du chez-soi en fonction des saisons. Quelles seraient alors les conditions architecturales à réunir pour concevoir de l’habitat collectif dans lequel l’usager y deviendrait pleinement actif ?
Si concevoir le logement comme un outil standardisé ne semble pas être le meilleur moyen d’y arriver, l’expérimentation en architecture pourrait, ces dernières années, être à l’initiative de réinterroger ces pratiques d’habiter et ainsi influencer l’expérience habitante, tant sur le plan social qu’environnemental.
Pour cela, prenons l’exemple de deux opérations de logements collectifs avec des volontés environnementales similaires mais chacune avec ses propres spécificités architecturales. Vous verrez ainsi que l’expérimentation des principes de la serre ou de la loggia bioclimatique produit des usages tant qualitatifs, qu’inattendus voire parfois contre-productifs au sein même de l’habitat. Pour ce faire, allons sur place et récupérons in situ les témoignages de leurs habitants respectifs !

À quels enjeux répond l’expérimentation bioclimatique dans le processus architectural aujourd’hui ?
Anticiper la mutabilité pour concevoir durablement ?
Depuis les réalisations de certains pionniers de l’habitat moderne au courant du XXe siècle, le logement collectif, social notamment, est devenu le laboratoire privilégié de l’architecture. Il devient notamment parfois un véritable terrain d’expérimentations collectives : « Penser la ville de demain», c’est mieux intégrer la contrainte écologique, et conserver l’ambition sociale d’un logement de qualité pour le plus grand nombre.» [1]
L’idée d’accorder une surface plus grande en vue d’un logement modulable ou d’offrir un certain luxe d’espaces fait ainsi naître la notion d’espaces intermédiaires. Les dispositifs qu’offrent ce type d’espaces sont complémentaires aux logements, ils forment le prolongement d’un espace privé de l’habitat vers l’extérieur. Ils définissent de cette façon une transition entre espace public et espace privé. Les architectes conçoivent ces espaces sous différentes formes : loggias, terrasses, balcons, coursives, passerelles, cages d’escaliers etc. Ainsi, la part d’expérimentation au sein du processus architectural est essentielle et peut s’illustrer par ces espaces intermédiaires, notamment dans la finalité d’un habitat « durable».
« Tenir compte des évolutions familiales et professionnelles tout en participant à la mutation de la métropole est le nouvel enjeu du logement aux prises avec les grandes transformations de la ville «durable». De nouvelles typologies émergent ainsi avec l’idée d’explorer des modes de vie inédits, en phase avec de nouvelles pratiques de la ville.» [2]
[1] COPPOLA Fabrizio, Vers de nouveaux logements sociaux, Cité de l’architecture et du patrimoine, Milan, Silvana Editoriale, 2009, p.6
[2] COPPOLA Fabrizio, op. cit., p.6
Le concept de l’espace en plus
Le concept d’un espace en plus, principe amené par les architectes Lacaton & Vassal, évoque une certaine notion du luxe et exprime ainsi au travers de l’architecture la générosité d’espaces, de lumière ou de confort.
Au sein de leur étude Plus[1] et à travers divers de leurs projets, ces deux architectes mettent en avant l’ouverture et la transparence maximale des façades générant ainsi un apport solaire important favorable au confort d’hiver. Les extensions des logements, au travers de balcons ou de loggias peuvent se clore par des systèmes mobiles ou coulissants, ouvrables l’été et capteurs de la chaleur l’hiver.
L’enjeu bioclimatique occupe de fait une place primordiale dans la mise en place d’un dispositif spatial comme celui de la serre.
[1] DRUOT Frédéric, LACATON Anne, VASSAL Jean-Philippe, Étude PLUS, les grands ensembles de logements, Étude réalisée par le Ministère de la culture et de la communication, août 2004

le concept de l’espace en plus ©Lacaton&Vassal
La serre au fil des époques
Cet espace tampon qu’est la serre existe finalement depuis plusieurs siècles et a vu ses usages se diversifier au fil du temps et des savoir-faire techniques. Illustration qui renvoie à ses débuts à l’apparition de l’orangerie au cours des XVe – XVIIe siècles, elle entretient par la suite un rapport privilégié au sein de l’habitat avec l’essor du jardin d’hiver dans les résidences de l’aristocratie. La démocratisation de la serre, jusqu’alors considérée comme un luxe et réservée à une élite, va permettre de l’associer à l’espace domestique, offrant ainsi au logement un espace additionnel différent et invitant à de nouvelles manières d’habiter tout en assurant un comportement bioclimatique en faveur des économies d’énergie.
Une approche comparative des deux opérations bioclimatiques
Analyser et comparer le processus expérimental de deux opérations de logements collectifs, celle de la résidence Boréal à Nantes et celle de l’immeuble Amplia à Lyon, permettra ainsi de croiser les formes d’appropriation des habitants de chacun des deux sites avec le discours des architectes.
Si chacun des deux projets se retrouvent sur nombre de points, à commencer par la présence d’un espace intermédiaire formant un espace bioclimatique : la serre horticole ou la loggia, puis aussi la taille des opérations, leur densité bâtie ou encore la question de la mixité sociale, les deux réalisations se distinguent par leurs modes de fonctionnement des principes bioclimatiques.
Par ailleurs, si les critères environnementaux de ces opérations d’habitat collectif semblent loin de primer dans le choix résidentiel de la majorité des habitants interrogés, il s’avère que ces espaces expérimentaux dits « bioclimatiques », en plus de leur apport thermique, semblent permettre la mise en place de nouveaux usages et ainsi finalement valoriser l’ensemble du logement.
Boréal, une opération fondée sur l’économie de moyens

La résidence Boréal : habiter la serre horticole ©Orlane Huitric
Située au Nord-Ouest de Nantes dans un quartier de renouvellement urbain à proximité d’un parc et du vallon de la Chézine, la résidence Boréal a été réalisée par l’agence Tetrarc et commandée par la maîtrise d’ouvrage Habitat 44. Composé de 39 logements, dont la moitié est en accession sociale et l’autre en locatif, le bâtiment reprend la typologie des maisons en bande.
Ce premier projet met en avant un discours architectural fondé sur une économie de moyens, sans outillage technique trop important à prendre en mains par les habitants. Cette volonté de la part des architectes permet de privilégier davantage de surface aux espaces habités. Ainsi, dans chacune des typologies de logements, un prolongement extérieur se dessine sous forme de serre bioclimatique, venant créer un véritable espace supplémentaire, parfois en double hauteur. Cet espace, à vocation de régulateur thermique, peut également devenir un levier d’appropriation très fort en termes d’usages.
Amplia, une opération qui repose sur l’appropriation de dispositifs techniques
Amplia, la seconde opération de logements qui m’a permis de mettre ces propos en perspective, se situe, elle, sur la péninsule de Lyon Confluence. Dans un cadre urbain assez dense, le bâtiment dispose tout de même d’une relation majeure au paysage, bénéficiant de vues dégagées sur la Saône. Composée d’une soixantaine de logements dont 15 en accession maîtrisée afin de favoriser une mixité sociale, l’opération a été conçue par l’agence d’architecture Lipsky+Rollet.
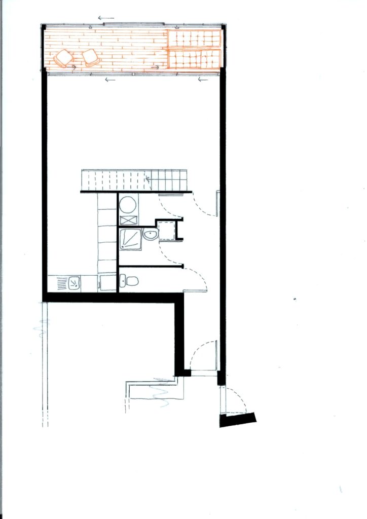
Par ailleurs, nous retrouvons là aussi le principe de prolongement de l’espace de vie vers l’extérieur à travers un système de loggias équipées de persiennes à lames de verre orientables. Celles-ci font office de régulateur thermique, et induisent ainsi des usages différents selon les temporalités. Ce volume habité dont les façades sont sans cesse en mouvement disposent d’autres dispositifs techniques plus ou moins appropriables directement par l’habitant : 1000m² de panneaux photovoltaïques contribuent à la production et revente d’électricité, des panneaux solaires permettent le chauffage de l’eau sanitaire et un système de VMC[1] double flux, etc.. La formalisation de l’habitat collectif souligne alors ici un outillage plus technique à prendre en mains par l’usager et pas forcément contrôlable directement depuis son logement.
[1] VMC : Ventilation Mécanique Contrôlée

Le prolongement extérieur, une valeur ajoutée à l’espace habité ?
Si le prolongement extérieur du logement vient marquer une des caractéristiques communes des deux projets, essayons de comprendre les impacts d’un tel espace dit bioclimatique sur le quotidien des usagers, à la fois thermiquement et spatialement. Ces « espaces en plus » traduisent souvent une valeur ajoutée du fait d’un espace non comptabilisé dans la surface du logement. En plus de leur rôle thermique, ils offrent ainsi de nouvelles possibilités d’usages, jouant entre intérieur et extérieur.


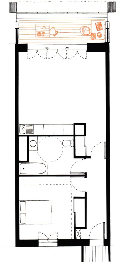
Redessin des usages en plan de la serre bioclimatique (Boréal) ©Orlane Huitric
Dans le cas de Boréal, la serre bioclimatique témoigne d’une véritable valorisation spatiale semblant laisser libre cours à une liberté d’appropriation de la part des usagers et ainsi aller à l’encontre de la standardisation des logements comme le souligne l’architecte Daniel Caud, chef de projet de l’opération nantaise : « Les serres horticoles, c’était déjà pour agrandir les logements puisqu’on considère ici que les logements tels qu’on les construit aujourd’hui sont beaucoup trop petits, trop exigus, que les règles d’accessibilité les rendent encore plus contraignants. […] L’idée c’était d’adjoindre une serre horticole pour doubler la surface du séjour. »
Par ailleurs, les habitants lyonnais comme nantais rendent compte, eux aussi, de la valeur ajoutée que dégagent leurs «espaces en plus» respectifs : « Ça devient un peu comme une pièce de vie, on peut d’avantage occuper son balcon.» [1] « La loggia ça fait une pièce supplémentaire. Avec 4 ou 5 mètres de hauteur, c’est un bel espace.» [2]
[1]Entretien in situ, à Lyon, avec un locataire de l’opération d’Amplia (couple avec enfant, 30 ans, cadre informatique)
[2]Entretien in situ, à Nantes, avec une propriétaire chez Boréal (couple avec 3 enfants, 35 ans, assistante de direction)

Néanmoins, expérimenter des espaces intermédiaires comme ceux présents au sein de ces deux opérations affiche parfois un décalage d’usages entre conception et appropriation. Est-ce un espace qui se révèle utile, inutile ? Dans lequel les usages se font de manière occasionnelle ou permanente ? Est-il le fruit d’usages programmés ou au contraire de la liberté d’appropriation des individus ?
Les qualités de ces espaces tampon s’illustrent tout d’abord dans la pluralité d’usages que semblent en faire les habitants. Si ces spatialités semblent occuper une place essentielle au sein de leurs pratiques d’habiter, leurs habitudes sont aussi diverses que peuvent l’être les typologies de loggias, celles de composition des ménages ou encore de leur statut locataire ou propriétaire.
Au sein de l’opération lyonnaise, certains habitants perçoivent leur loggia comme un espace permettant une multitude d’activités annexes : « Le café tous les jours dehors. […] C’est rare que je mange sur la terrasse. Je prends le café le midi, ça m’arrive de prendre un verre avec des visiteurs, de sécher le linge, ou de stocker les légumes au frais l’hiver.» [1]
Puis, d’autres comme cette famille avec de jeunes enfants, vivent cet espace comme une centralité indispensable de leur appartement. La grande surface dont ils bénéficient permet une grande adaptabilité : « On mange toujours dehors à partir du printemps, puis l’été. On l’utilise pour prendre l’apéro, le café, la lecture, les repas, sécher le linge. Les enfants y font du vélo et de la trottinette aussi. Ça fait 35 m². C’est une véritable pièce en plus. On s’en sert comme jardin, une partie avec des plantes, et l’autre partie, comme c’est très grand, on y met des tables avec des chaises.»[2]
D’autres encore viennent intégrer la loggia à leur espace habité comme une véritable pièce en plus, sectorisant sa surface en fonction de leurs activités. Plusieurs usages distincts spatialisent donc ce prolongement extérieur en venant agencer les différentes parties qui le composent : « C’est une prolongation du logement. On a fait 2 espaces : le côté salle à manger avec table et chaises ; et au bout de la terrasse qui est accessible depuis la chambre, on a aménagé un coin lecture avec des fauteuils. C’est suffisamment grand pour être utilisé de manière différente. On y passe beaucoup de temps.» [3]
Ces deux habitants cités ci-dessus, par ailleurs respectivement locataire et propriétaire, anticipent leurs usages, à l’image d’un choix stratégique pour aménager et optimiser ce type d’espace.
[1]Entretien in situ, à Lyon, avec une locataire de l’opération d’Amplia (employée pharmaceutique, 50 ans, vivant seule)
[2]Entretien in situ, à Lyon, avec une propriétaire chez Amplia (couple avec 2 enfants, 30 ans, cadres)
[3]Entretien in situ, à Lyon, avec des locataires de l’opération d’Amplia (couple, 27 ans, architectes)


Mise en couleur des usages de la loggia bioclimatique au sein de l’immeuble Amplia ©Orlane Huitric
Concernant l’opération Boréal, les habitants semblent se saisir de la spatialité de la serre horticole davantage pour des usages occasionnels par rapport aux résidents lyonnais d’Amplia. Il s’agit pour l’ensemble des propriétaires et quelques uns des locataires d’un lieu qui va devenir une surface supplémentaire garantissant de nouvelles pratiques qui n’auraient pas eu lieu d’être au sein de l’espace interne de leur logement :
« Ça me sert de jardin d’hiver, j’ai des plantes du type : bougainvilliers, hibiscus, citronniers etc… que je monte l’hiver, ce qui me permet d’avoir de la verdure.» [1]
« Moi qui suis fumeur et qui ai beaucoup d’amis fumeurs, on reste beaucoup dans la loggia pour discuter et éviter d’enfumer tout le logement. Pour moi, c’est un vrai espace de vie. […] J’y ai installé un canapé, ma petite table basse. Voilà, c’est l’endroit où je me pose pour fumer, de temps en temps pour bouquiner. C’est plus l’endroit «détente, rien faire» que vraiment un usage en particulier.»[2]
« C’est une salle de jeux pour nous, enfin pour les enfants. Moi, j’y vais rarement et d’ailleurs je dis souvent que je ne profite pas assez de la loggia. Je m’y pose un petit peu pour lire parfois mais ce n’est pas une pièce que je vais utiliser tout le temps.» [3]
Ces témoignages soulignent une véritable marque de liberté d’appropriation, il est question d’un espace perçu comme réellement utile pour une partie des habitants. D’autre part, l’une des familles, sensibilisée à la surchauffe de son logement, a poussé l’appropriation de l’espace formé par la serre par la mise en place d’une mezzanine et d’un voilage afin d’assurer une meilleure protection solaire zénithale.
[1]Entretien in situ, à Nantes, avec une locataire chez Boréal (retraitée vivant seule, 65 ans)
[2]Entretien in situ, à Nantes, avec un locataire chez Boréal (employé administratif, seul, 30 ans)
[3]Entretien in situ, à Nantes, avec des propriétaires de Boréal (couple avec 3 enfants, 40 ans)


Les usages définis par des pratiques d’habiter propres à chacun affichent par ailleurs une visibilité permanente en façade. En effet, la lecture des façades dessine une véritable différence d’appropriation de la serre bioclimatique entre la partie dédiée aux locataires et celle des propriétaires.
Si la partie location du bâtiment ne semble pas définir en façade des usages en corrélation avec les attentes de conception, elle met plutôt en évidence une appropriation déficiente des surfaces de serre, celles-ci se caractérisant principalement par du stockage, une juxtaposition d’objets, etc. L’utilité d’un tel espace semble alors être beaucoup moins évidente chez la majorité des locataires : « Manger ? Non jamais, puisque je trouve que je n’ai pas assez de place. J’y mets un meuble pour tout ranger tout ce que j’ai en plus, une petite armoire aussi pour mes courses, j’étends mon linge… J’ai un chat aussi, donc j’y ai installé sa litière. Mais c’est tout, je n’y fais rien de spécial. Franchement, je n’en profite pas.» [1]
« Si l’été ça arrive. Bon là, c’est le bordel ! Mais avant, j’aimais bien prendre le café, le matin. Mais manger c’est trop petit pour moi, vu la taille. Je ne peux pas, je l’ai fais une fois, on ne pouvait pas bouger. » [2]
Cependant, le dimensionnement des serres bioclimatiques en fonction des typologies de logements vient également contribuer aux possibilités d’usages au sein de ces espaces. Marquent-elles dans tous les cas une réelle extension de l’espace habité du logement ?
[1]Entretien in situ, à Nantes, avec une locataire chez Boréal (femme seule, employée, 55 ans)
[2]Entretien in situ, à Nantes, avec une locataire chez Boréal (famille monoparentale, femme au foyer, 30 ans)
Face à l’intimité : ouvrir ou occulter ?

Les deux réalisations suivent les mêmes volontés architecturales concernant les dispositifs de circulation, extériorisant ceux-ci en façade. Ces choix de conception posent alors la question de l’intimité au travers de l’expérience vécue par les habitants et nous amènent à nous intéresser à la notion de seuil, au degré d’occultation en façade et ainsi à l’usage thermique qui en découle.
« Ce qui nous a plu, c’est le fait que ce soit totalement traversant, que la lumière passe, qu’il y ait une ouverture, une perspective. Ça ne nous dérange pas du tout qu’on nous voit sur une partie, mais on a mis les fauteuils là, on ne voit que nos têtes. Mais je sais que ça gêne certains de nos voisins et ils obstruent, mais je trouve que ce n’est pas dans l’esprit de la construction d’obstruer. »
D’autre part, on retrouve chez Amplia cette possibilité de moduler l’ouverture de sa loggia au travers des lames de verre et persiennes qui peuvent s’ouvrir, se fermer et replier à l’infini. Certains usagers profitent ainsi de ce jeu de façades évolutif non pas seulement à fin bioclimatique mais également pour articuler leur degré d’intimité, comme l’exprime l’un des locataires : « Quand tout est ouvert, on est en direct avec la rue. C’est parfois agréable de fermer une partie, […] psychologiquement, on se sent plus chez soi, on a plus d’intimité. On a plutôt tendance à composer au niveau de l’ouverture des lamelles, d’autant plus qu’on est au 2ème étage, avec une proximité avec le passage dans la rue. »
D’autres encore, moins enclins à rendre visible leur espace habité, au travers de la transparence des loggias bioclimatiques, choisissent d’occulter par une couche supplémentaire en plus des lamelles de verre souvent fermées : « Et je mets des voilages, car il y a des immeubles en face. »
Si ces propos marquent une fois encore l’importance du facteur culturel ou physiologique, cela pose également la question du rôle de l’habitant dans le bon fonctionnement thermique de tels logements pensés et conçus comme bioclimatiques.
Un lien entre appropriation habitante et confort thermique ?
Malgré des injonctions environnementales de la part des politiques ou des acteurs de la conception, il apparaît évident que seul l’aspect technique ne suffit pas. L’habitat « durable » ne peut se résumer aux performances énergétiques du bâtiment ou de ses équipements ni même se rapporter seulement à une vision technicienne. Le rôle de l’habitant est alors essentiel afin d’effectuer les bons gestes et ce, dans une certaine temporalité. Dans la perspective d’assurer l’efficacité bioclimatique du logement, les dispositifs intégrés à l’habitat se doivent d’être utilisés de façon optimale, mettant en avant une image harmonieuse et synchronisée du «couple équipement-habitant». [1]
De fait, vivre dans un logement dit bioclimatique ne correspondrait pas simplement à une série de gestes désincarnés qu’il faudrait réduire ou au contraire adopter, mais à des pratiques domestiques à se réapproprier.
Cela pourra faire prochainement le sujet d’un autre article dans lequel le témoignage habitant, appuyé cette fois d’une étude thermique, viendra illustrer les différents dispositifs architecturaux mis en place dans chacune des deux opérations. L’analyse des modes d’habiter au fil de chacune des saisons dans les loggias et serres bioclimatiques permettra d’appréhender le confort thermique des usagers au quotidien, en été comme en hiver et le degré d’appropriation des divers outils bioclimatiques, les dispositifs manipulables comme l’outillage plus technique.
En attendant d’en savoir plus, il n’est pas nécessaire de vivre avec une serre bioclimatique pour participer à la transition écologique : il vous est toujours possible de découvrir d’autres facettes de l’éco-construction via les formations Ghara !
[1] FAUCHER Patrick, POUSSEUR Margot, LE CAMPION Grégoire, MORIN Anthony, « Eco-quartiers : vers une nouvelle forme de relation entre l’usager et l’équipement », Villes et quartiers durables, la place des habitants, Bordeaux, Carrières sociales, 2016, pages 453-459.

ORLANE HUITRIC
Architecte D.E
